Ленточные фильтр-прессы
Осушитель грязного осадка сточных вод – ленточный фильтр-пресс - это технология разделения жидких и твердых веществ, которая объединяет в себе достижения современной науки.
В результате высокой эффективности очистки сточных вод, низкой стоимости эксплуатационных расходов, безопасного и надежного автоматического управления конвейерный пресс обратил на себя внимание техников и инженеров всего мира.
Принцип работы
Принцип работы Ленточного фильтр-пресса, главным образом, представляет собой смешение осадка сточных вод полимерным коагулянтом и применение методов сжатия и резки для разрушения границ между грязным осадком и молекулами воды, чтобы достигнуть цели дегидратации. Скорость дегидратации и степень влажности зависит от дизайна и устройства валового давления и новой технологии угла сдвига на входе грязи.
Процесс работы ленточного фильтр-пресса

Описание процесса работы
Процесс дегидратации включает в себя смешение входящего осадка сточных вод, гравитационную дегидратацию, клинообразное предварительное натяжение, вал низкого давления, вал среднего давления и вал высокого давления для отжима воды.
- Смешение входящего осадка сточных вод: уникальный дизайн резервуара способствует смешиванию грязевого осадка и химических веществ при постоянной скорости для выполнения соединительных реакций.
- Гравитационная дегидратация: высокоточный дизайн направляющих планок и сепараторов с соответствующей сеткой могут удалить большую часть воды с поверхности без разрушения соединений структуры осадка.
- Клинообразное предварительное натяжение: метод, который представляет собой простое гармоническое предварительное натяжение для постепенно возрастающего давления для стабилизации входа осадка и избегания боковой утечки грязи.
- Вал низкого давления: равномерное распределение отверстий на поверхности способствует стоку большого количества свободной воды. Благодаря относительной скорости и касательному напряжению между фильтровальными тканями и валами происходит легкое трение, что перекомпоновывает осадок.
- Вал среднего давления: ключевой момент заключается в том, как уменьшить натяжение резательной поверхности маленького вала, чтобы постепенно повышать давление для удаления капиллярно-спаренной воды среди частиц осадка.
- Вал высокого давления: повышает давление фильтровальной ткани и срезающего усилия до максимально возможного, чтобы окончательно разрушить структуру шлама и молекул воды, а также спрессовать их на поверхности фильтровальной ткани, чтобы удалить свободную воду. Шлам счищается с помощью резинового валика и срезающего усилия.
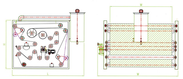
Схема технологического процесса

Схематическое изображение оборудования

Характеристики оборудования
- Большая производительность: непрерывная работа при высокой скорости потока
- Простота в обращении: автоматическая работа
- Регулятор натяжения для фильтровальных тканей: коленчатые рычаги используются в целях обеспечения равного натяжения на обоих концах фильтровальной ткани и поддерживают определенное давление на ней.
- Выравниватель осадка: контроль толщины и однородности загрязненного осадка, входящего в вал низкого давления.
- Адаптируемая система промывки: регулировка количества воды для очистки зависит от содержания грязевого осадка. Экономит более 50% воды.
- Пневматический регулятор: пневматические цилиндры по обеим сторонам точно уравновешивают отклонения фильтровальных тканей, чтобы избежать зигзагов и сохранять ткань ровной и сложенной.
- Широта применения: все виды загрязненного осадка могут быть обработаны путем добавления коагулянта.
Размеры Двойного Ленточного фильтр-пресса
| Модель | Ширина фильтр. ткани (мм) |
Габариты оборудования (мм) |
Вес (кг) | Производительность Содержание воды 20% (м3/час) |
Содержание твердых веществ 3% в загряз. воде (м3/час) |
Мощность (л.с.) |
Промыв. насос (л.с.) |
||
| Длина | Ширина | Высота | |||||||
| БД600 | 600 | 3000 | 1200 | 2000 | 1600 | 1-3 | 4.5-14 | 1.0 | 1.0 |
| БД1000 | 1000 | 3000 | 1700 | 2000 | 2800 | 1.8-4.0 | 8.4-18.7 | 2.0 | 2.0 |
| БД1500 | 1500 | 3000 | 2200 | 2000 | 4000 | 3-8 | 14-37.4 | 3.0 | 3.0 |
| БД2000 | 2000 | 3000 | 2750 | 2000 | 5200 | 6-12 | 28.1-56.2 | 3.0 | 3.0 |
| БД2500 | 2500 | 3000 | 3350 | 2000 | 6200 | 10-15 | 46.8-70.2 | 5.0 | 5.0 |
Размеры Тройного Ленточного фильтр-пресса
| Модель | Ширина фильтр. ткани (мм) |
Габариты оборудования (мм) |
Вес (кг) |
Производительность Содержание воды 20% (м3/час) |
Содержание твердых веществ 3% в загряз. воде (м3/час) |
Мощность (л.с.) |
Промыв. насос (л.с.) |
Мощность дегидрации |
||
| Длина | Ширина | Высота | ||||||||
| БТ1000 | 1000 | 5750 | 1800 | 1600 | 3200 | 2.5-6 | 11-28 | 2.0 | 3.0 | 0.5 |
| БТ1500 | 1500 | 5750 | 2300 | 1600 | 4600 | 4-10 | 18-46 | 3.0 | 3.0 | 0.5 |
| БТ2000 | 2000 | 5750 | 2800 | 1600 | 6200 | 8-14 | 37-65 | 5.0 | 5.0 | 1.0 |
| БТ2500 | 2500 | 5750 | 3300 | 1600 | 7200 | 12-18 | 56-84 | 5.0 | 5.0 | 1.0 |
Примеры из сферы применения:
- Бытовые стоки
- Стоки текстильной фабрики
- Стоки свиноферм
- Все промышленные стоки
